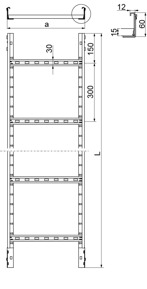
Кабельрост Click з покриттям Magnelis DFP400H60/3MC (4661415) Виробник: BAKS Артикул: DFP400H60/3MC Ціна за дзвінком Кількість: Замовити Індивідуальний список бажань ОК Додати до списку бажань Додати до списку порівняння Повідомити друга Прокладання кабельної траси. Матеріал MC - сталь з покриттям Mangelis® Додаткова інформація – швидкий та легкий монтаж – система без роз'ємів – стабільне застібне з’єднання – драбина зі сходами, що підходить для монтажу кабельних затискачів UK/UKO... та UKP... – опція E90 для довжин 100 – 400 мм Характеристики товару Назва атрибуту Значення атрибуту Характеристики стандартів Вогнестійкість Вогнестійкий E-90 Системи кабельних трас Типи елементів кабельрост Висота борта H60 Товщина листа 1.5 мм Монтаж Встановлення без інструментів Вага 1м [кг] 3.24 kg Кількість у коробці [шт/м] 2 / 6 pcs. / m. Ефективна секція 16,800 Довжина L [мм] 3 000 mm Ширина a [мм] 400
Прокладання кабельної траси. Матеріал MC - сталь з покриттям Mangelis® Додаткова інформація – швидкий та легкий монтаж – система без роз'ємів – стабільне застібне з’єднання – драбина зі сходами, що підходить для монтажу кабельних затискачів UK/UKO... та UKP... – опція E90 для довжин 100 – 400 мм